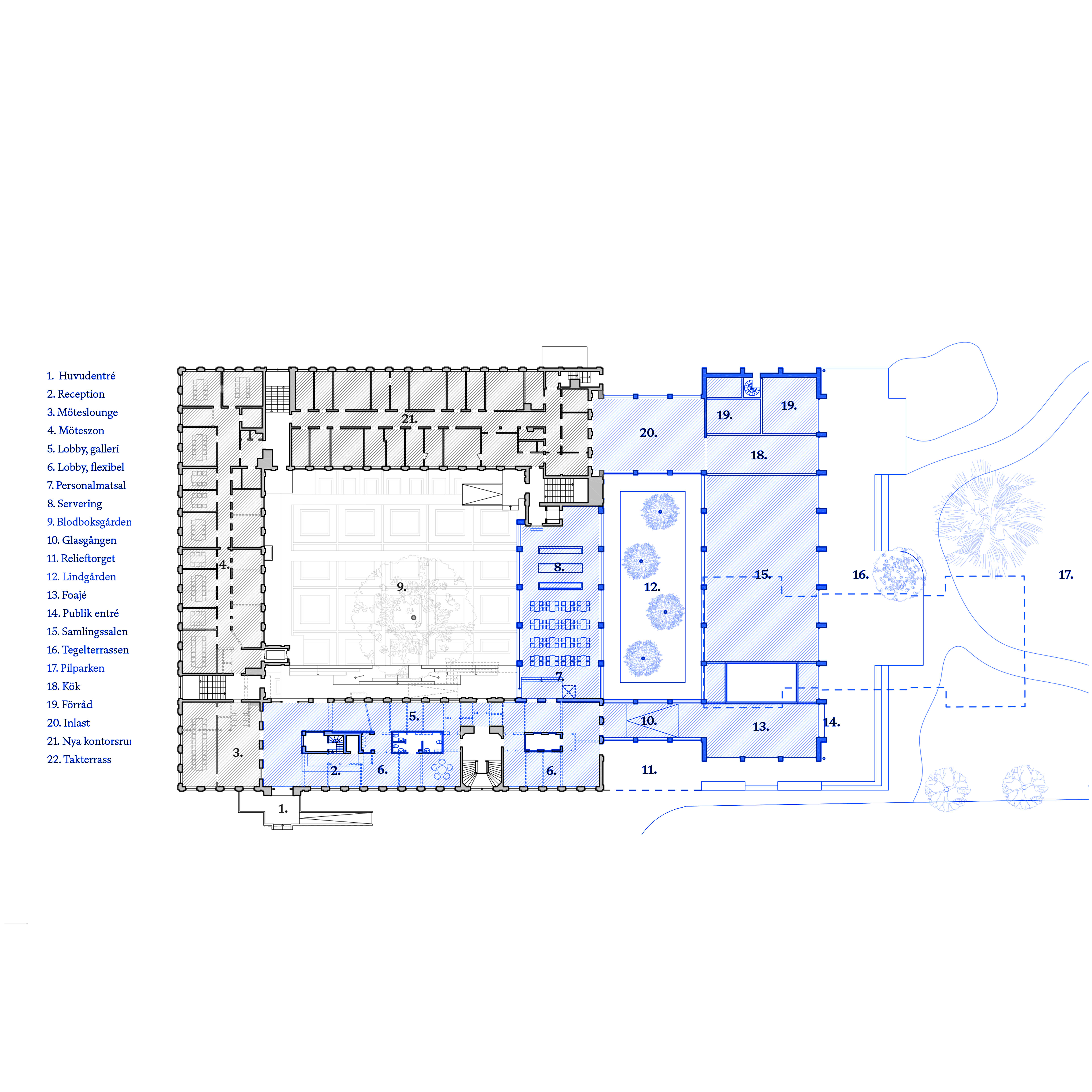
Extension of Svedala Town Hall – part of the city’s future
Building on what already exists, the design carries forward the original 1964 architecture in rhythm, materials, and detailing - now opened up with public spaces, clear sightlines, and a stronger connection to the park.
Reused brick, green pathways, and a glazed link between old and new connect history with the future. Former office areas become shared spaces for both employees and citizens.




