A summerhouse for a father and daughter in Fårö, Gotland.
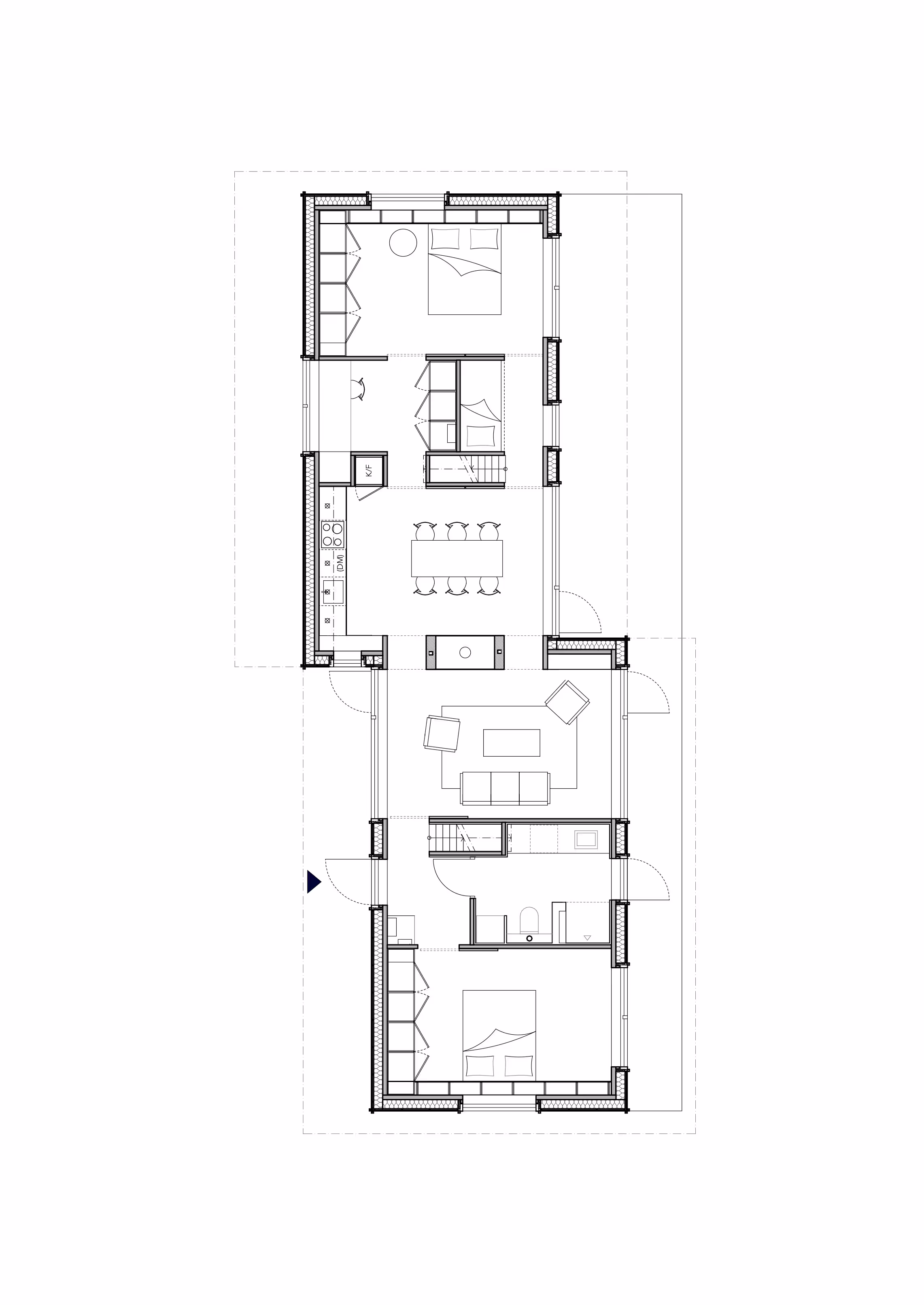
The project is stipulated by two identical volumes offset from each other. The offset defines outdoor space and the two volumes are connected via a large fireplace.
It's a rational and simple construction adapted to the conditions of a CLT-wood system.
The southern facade opens up to nature reserve and the other facades are more enclosed to the surrounding neighbors.








